扫描到手机
扫描到手机 新闻随时看
扫一扫,用手机看文本
更加方便分享给朋友

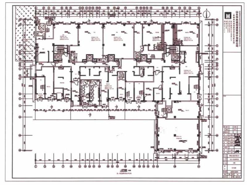
2023年8月8日,聊城宏大置业有限公司因规划调整,向我局申请变更安居·昌润湖畔项目总平面布置图及8#楼、地下车库的建设工程设计方案,新申请箱变建设工程规划许可证,该项目位于昌润路以西、堤口路以南。用地性质为城镇住宅用地、商务金融用地。
根据《中华人民共和国城乡规划法》《中华人民共和国行政许可法》《山东省实施行政许可听证办法》等法律法规的规定,我局受理后经审查,拟许可其申请,现依法进行许可前公告听证公告。公告地点:市审批局公告栏、市审批局网站、项目现场。公示期不少于20个工作日。自2023年9月16日至2023年10月14日。
申请人、利害关系人可在上述公示期内,持营业执照、身份证、不动产权证书或房屋买卖合同等有效证件资料对我局拟许可事项提出陈述申辩意见,可在上述公示期内申请参加听证。
联系科室:工程建设审批一科
联系人:王琦
联系电话:0635-8903717
邮箱: Icsspjzrzyk@163.com
聊城市行政审批服务局
2023年9月15日


鸟瞰图

工程设计图
