扫描到手机
扫描到手机 新闻随时看
扫一扫,用手机看文本
更加方便分享给朋友
聊城高新技术产业开发区许营镇朱庄村村庄规划(2022-2035)批前公示

根据《中华人民共和国城乡规划法》《中华人民共和国土地管理法》等法律法规和有关规定,现对《聊城高新技术产业开发区许营镇朱庄村村庄规划(2023-2035年)》方案予以公告。公告时间自2023年4月25日至2023年5月24日,欢迎社会各界提出意见和建议。申请人、利害关系人对公告内容享有听证的权利,如需听证,请自本公告发布之日起五日内提出听证申请,逾期视为放弃听证权利。如有意见、建议,请在公告期内以书面形式署名交许营镇人民政府(需提供有效身份证明)。 地址:聊城高新技术产业开发区许营镇驻地 电话:0635-8591008 编制单位:聊城市城乡规划设计研究院 电话:0635-8311326 附注: 1.规划主要内容。 2.公示地点:聊城日报、市自然资源和规划局网站、镇政府服务中心公示栏、项目现场。 聊城高新技术产业开发区许营镇人民政府 2023年4月25日

一、规划范围
本次规划的范围为村庄全域国土空间,总面积约184.5公顷。
二、规划期限
规划期限为2022-2035年,其中近期至2025年。
三、规划原则
多规合一,注重统筹安排
保护生态,注重绿色发展
分类对待,强调因地制宜
保护文脉,凸显乡土特色
以人为本,注重村民主体
四、村庄类型
村庄类型为集聚提升类。
五、规划定位
在乡村振兴战略背景下,打造经济发展、村容整洁、设施齐全、生态安全、乡风文明、产业兴旺的美丽宜居型村庄。
六、发展策略
采用全域综合整治的理念,对“田水路林村”进行全要素综合整治,把每一寸土地规划得清清楚楚,达到集约高效、生态优美、生活宜居的目标。

七、国土空间用途管控
朱庄村村域范围内无生态保护红线。
以最严格的耕地保护和节约用地制度为核心,强化土地用途管制和空间管制,确定生产空间、生态空间和生活空间。


严格保护耕地和永久基本农田,依法依规做好耕地占补平衡。通过高标准农田建设项目的实施,改善农业基础设施,提升农田质量,改善农业生产条件。


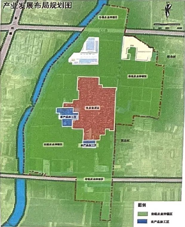
八、产业规划
传统农业种植区:主要进行传统农作物如小麦、玉米、大豆种植。
农产品加工区:进行农产品生产及初加工,进一步拓宽产业,增加村民收入,解决村民就业问题。

九、近期建设规划
近期建设以农田整治、基础设施和公共服务设施建设,人居环境整治为主。



十、村庄规划管制规则 1 生态保护
保护村庄内生态林、水域、自然保留地等生态用地,不得进行破坏生态景观、污染环境的开发建设活动,做到慎砍树、禁挖山、不填湖。
2 耕地和永久基本农田保护
①本村内已划定永久基本农田87.55公顷,任何单位和个人不得擅自占用或改变用途(以批复的乡镇国土空间总体规划为准)。
②本村庄耕地保有量97.16公顷,不得随意占用耕地;确实占用的,应经村民小组确认,村委会审查同意出具书面意见后,由镇政府按程序办理相关报批手续。
③未经批准,不得在园地、商品林及其他农用地进行非农建设活动,不得进行开垦、取土等活动。
3 建设空间管制
本村庄内建设用地规模为48.57公顷。
①产业发展空间
经营性建设用地按照农村一二三产业融合的发展方向,可用于农产品生产和初加工。经营性建设用地调整应经村民小组确认,由村委会审查同意,逐级报村庄规划原审批机关批准。
②农房
村庄宅基地22.15公顷,应体现鲁西建筑特色,采用暖色调,符合村庄整体景观风貌控制性要求。农房建设严格落实“一户一宅”政策,户均宅基地≤200平方米,联排式农房控制在2-3层,单元式住宅不超过6层,层高不宜低于2.8米。
③基础设施和公共服务设施
不得占用交通用地建房,在村内主要道路两侧的建筑应根据《聊城市国土空间规划管理技术规定》进行退线,公共服务设施用地主要包括村务活动室、卫生室、文化活动室、户外运动场、便民超市等公共服务设施用地,村民不得随意占用。
4 防灾与减灾
①村民住宅选址和建设须避开自然灾害易发地区。
②村庄建筑的间距和通道的设置应符合村庄消防安全的要求,不得少于4米;道路为消防通道,不准长期堆放阻碍交通的杂物。
③公共绿地、广场等为防灾避险场所,紧急情况下可躲避灾害。