聊城住房网客服服务热线:0635-8201090
手机版
移动端

登录 /  注册

联系我们

    关注聊城住房网二维码,了解最新楼盘信息

    服务电话 0635-8222791

    客服QQ 82071045

    加入收藏

历史文化名城⑱期 | 历史建筑 米市街粮店仓库

来源:  聊城住房网 发布于 2023-01-13
  扫描到手机

扫描到手机  新闻随时看

扫一扫,用手机看文本
更加方便分享给朋友

历史建筑

图片

米市街粮店仓库

历史文化建筑

古建筑是历史文化的载体

是一座城市的记忆,是城市历史的见证者,它承载着这座城市的文化积淀。



图片
建筑概况
图片

建筑名称:米市街粮店仓库

建筑地址:山东省聊城市东昌府区米市街142号

建造年代:建国后(1949-1978年)

建筑类别:公共建筑

现状功能:工业仓储

结构类型:砖混结构

建筑面积:335.90㎡

所在城市类型:国家级历史文化名城

建筑特色描述:建国后,顺应时代需要在米市街建立的粮店,供给附近居民粮、油用品,反映了当时供给经济的特征,此粮店为国营企业,当时有工人20人左右,粮店二楼及家属院,厂房改为职工个人所有,一楼是原粮店仓库,归东昌府区粮油供应公司所有。


图片



彩色模型:顶视图



1.png



彩色模型:右后视图

图片


彩色模型:视图

图片


彩色模型:左前视图

图片




彩色模型:后视图

图片


总平面图


图片




平面图




图片

图片




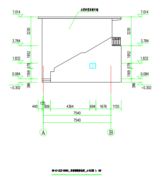
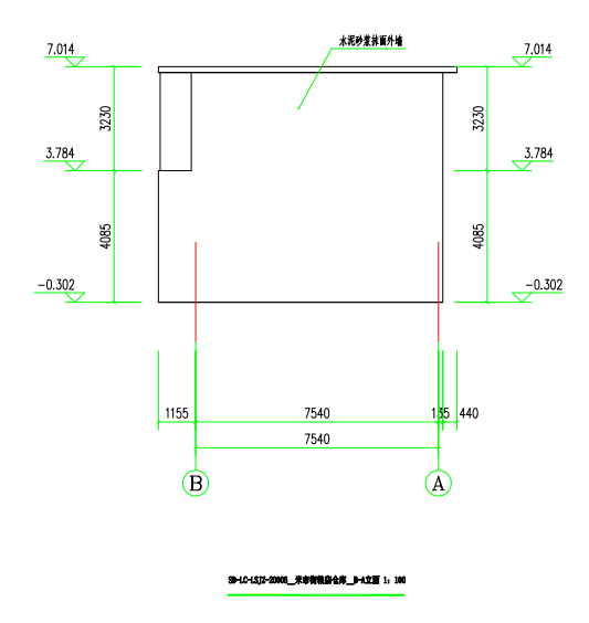
立面图




图片
图片
图片
图片




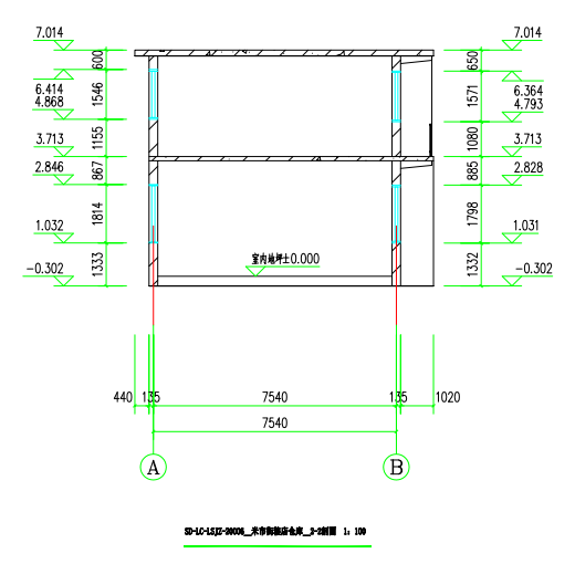
剖面图




图片
图片




图片
影像档案
图片

图片

主要立面

图片

次要立面

图片

次要立面

图片

次要立面

图片

价值要素部位

图片

价值要素部位



免责声明:本网站转载内容仅为传递更多信息,并不代表本网站同意其说法或描述,与本网站立场无关。
  • 微信公众号
  • 小程序
  • 业务编号 ****** 项目名称 ******
    合同编号 - 幢号 ******
    买受人 - 出卖人 -
    申请日期 - 成交总价 ******
    完成日期 - 备注 -