聊城住房网客服服务热线:0635-8201090
手机版
移动端

登录 /  注册

联系我们

    关注聊城住房网二维码,了解最新楼盘信息

    服务电话 0635-8222791

    客服QQ 82071045

    加入收藏

历史文化名城⑰期 | 历史建筑 聊城县豫剧团练功房

来源:  聊城住房网 发布于 2023-01-05
  扫描到手机

扫描到手机  新闻随时看

扫一扫,用手机看文本
更加方便分享给朋友

1b36d7052e1349c9507f6168a56c8dea.jpg

聊城县豫剧团练功房


历史文化建筑


古建筑是历史文化的载体


是一座城市的记忆,是城市历史的见证者,它承载着这座城市的文化积淀。


  建筑概况


  建筑名称:聊城县豫剧团练功房


  建筑地址:山东省聊城市东昌府区米市街128号


  建造年代:建国后(1949-1978年)


  建筑类别:公共建筑


  现状功能:闲置空置


  结构类型:砖混结构


  建筑面积:102㎡


  所在城市类型:国家级历史文化名城


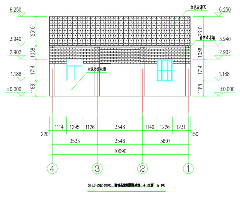
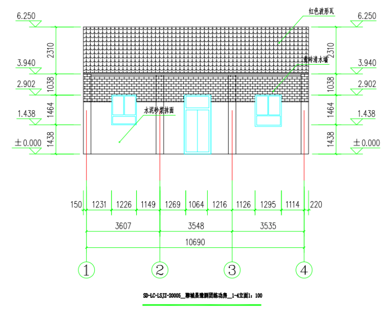
  建筑特色描述:组建于1948年,初名为寿张县豫剧团,1964年归专区领导,1970年下放到聊城县,名为“聊城县豫剧团”,曾到东北三省,河南,河北各大城市及农村厂矿巡回演出,多次参加省,专区举办的戏剧汇演,调研并获奖,先后出现了张桂花、章兰等著名豫剧表演艺术家,现章兰任团长,张玉臣任书记,经常外出演出,为聊城文化事业做出积极贡献。此练功房为豫剧团的主要练功房。3间练功房青砖建造,起脊瓦房。


aee3768c47367210a32937502de76978.png

彩色模型:顶视图


a79fe6e765f1bdf9547ea4ad09d6fc43.png

彩色模型:右后视图


374f2266595c5f6d39b860631e993c65.png

彩色模型:右视图


accd1d53d38f36f37647f30dc94c6b3e.png

彩色模型:左前视图


bb80787ea14eb8dfa4801d2c9d4c558f.png

彩色模型:左视图


f973320e76e575ecd9c677323de3b896.png

总平面图


624c25b211d1569c8154a4553bed9dc0.png

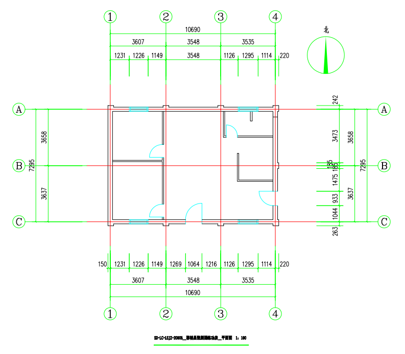
平面图


93520b3c2eff1fa488d70682f7477e2c.png

立面图


94216fbf94cb53955b79a73d2626829c.png

b243bc18b4a08ec3901d77a6c966b0cb.png

fe586e367f894b8b0b75d5bc4d5b8c86.png

剖面图


099d6e2889a923cab836540c630c1092.png

影像档案


1b03f35a4c037a68ce545999da61d92d.png

主要立面


e7e77956eaf6183fd50cae621c204a9d.jpg

主要立面


8c2bde6fb87ac2024cf8f0ff6a3dcb97.jpg

次要立面


d198890f4f6908d180fc79440334f20f.png

次要立面


6cf328c9fbedf084530d5c1509d10fc5.jpg

价值要素部位


b99d25575d777a0756d3d5b66d7ab022.jpg

价值要素部位


25ecedd513179bc6f0313c9f73ba13c2.png

价值要素部位


免责声明:本网站转载内容仅为传递更多信息,并不代表本网站同意其说法或描述,与本网站立场无关。
  • 微信公众号
  • 小程序
  • 业务编号 ****** 项目名称 ******
    合同编号 - 幢号 ******
    买受人 - 出卖人 -
    申请日期 - 成交总价 ******
    完成日期 - 备注 -